The Challenge
Multipled Locations, No Drawings, Two Week Deadline
55 Central Inc is a non-profit organisation in Maylands, WA, providing housing and support services to individuals facing homelessness, mental illness, addiction, or other life challenges. To access SHERP grants, 55 Central would need to meet eligibility criteria, apply for funding under specific streams, and liaise with the Infrastructure Grants Team.
About 55 Central Inc
55 Central Inc has supported vulnerable Western Australians since 1975, offering crisis accommodation, transitional housing, and tailored support programs. Located in Maylands, the organisation delivers trauma-informed, person-centred services that include intensive case management, peer mentoring, and wellness initiatives. Co-located services such as alcohol and drug counselling, psychology, and medical support enhance its holistic approach.
Programs like Grow & Grind barista training help clients rebuild confidence and skills. 55 Central plays a vital role in breaking the cycle of homelessness, promoting recovery, and fostering independent living. Its team actively engages in sector training and community consultation, ensuring services remain responsive and inclusive. With a strong reputation for compassionate care and practical outcomes, 55 Central continues to be a safe haven for those navigating complex life challenges.
Accessing SHERP Grants
To access SHERP (Social Housing Economic Recovery Package) grants, 55 Central had to:
- Meet eligibility criteria as a community housing provider.
- Apply under relevant streams: e.g: refurbishment (up to $500,000 per dwelling) or maintenance (up to $100,000 per property).
- Submit detailed applications for each property, including scope of works and quotes and/or QS Reports.
- Consult with the Infrastructure Grants Team before applying.
- Ensure compliance with reporting and delivery timelines.
SHERP grants are administered by the WA Department of Housing and Works to improve social housing quality and support vulnerable communities.
Our Approach
ProfitPays Gets You There - Fast, Focused and Hands-On, From Kick-Off to Target Milestone
In September 2021, ProfitPays was engaged by 55 Central Inc to prepare a detailed Quantity Surveying (QS) estimate and report for proposed refurbishment works at their Maylands and regional properties. The initial brief was provided by board member Don Tunnicliffe, followed by a kick-off meeting with the 55 Central team to review available documentation and define the scope of work. The estimate aimed to support funding applications, including alignment with SHERP (Social Housing Economic Recovery Package) grant requirements.
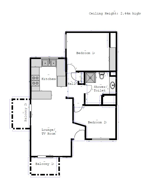
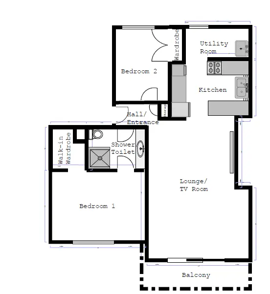
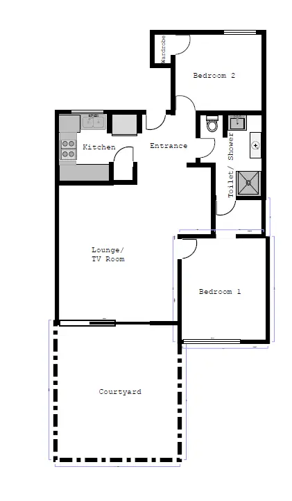
To inform the estimate, ProfitPays received key documents including the proposed scope of works, architectural drawings for the admin building and onsite residential units (1–6), SHERP refurbishment guidelines, and a historical kitchen quote. A site inspection was conducted over two days in September 2021 to assess existing conditions, capture measurements, and photograph the properties. These inspections enabled ProfitPays to draft floor plans and visual references that supported the estimating process.
Using On-Screen Take-off (OST) software, ProfitPays quantified all refurbishment elements directly from the provided drawings. This included measurements for demolition, new finishes, fixtures, fittings, and services. The quantities were compiled into a structured Bill of Quantities (BoQ), forming the basis for cost analysis.
In August 2024, CEO Razif Ismail requested ProfitPays to update the original estimate to reflect current market conditions. ProfitPays revised the pricing using the latest Rawlinson’s Australian Construction Handbook (2024 Edition) and adjusted rates based on recent project experience and professional judgement. Where benchmark rates were unavailable, ProfitPays applied comparable data or bespoke pricing to ensure accuracy.
The final estimate provided 55 Central with a robust, market-aligned cost breakdown suitable for grant submission, contractor engagement, and project planning.
@australiancommunitymedia 'Appalling': thousands of social housing homes vacant as Australia's rental crisis worsens #rentalcrisis The Victorian government has admitted nearly 5,000 social housing properties were sitting empty - many needing repairs - despite record demand across Australia’s rental market. This video includes ACM-produced voiceover powered by AI. #victoria #australia #costofliving #socialhousing #publichousing #assistance #rentingproblems #renting #homelessness#unhoused#livingrough #ACM #exclusive ♬ original sound - Australian Community Media
Key Services
Core Services That Enabled Success
ProfitPays expertise and hands-on approach enabled 55 Central Inc to fast-track a robust, market-aligned estimate, unlocking funding pathways
-
Quantity Surveying Reports
-
Drafting Floor Plans
-
Site Visits
-
Measurement
-
BOQ Development
-
Estimating
The Results
A QS Report That Made the Difference
ProfitPays detailed estimate gave 55 Central Inc the clarity and confidence to pursue funding, engage contractors, and improve the overall service offered.
ProfitPays played a pivotal role in 55 Central Inc’s successful SHERP grant application by delivering a detailed, market-aligned refurbishment estimate that met all funding criteria. ProfitPays expertise ensured scope clarity, accurate costings, and compliance with SHERP guidelines, strengthening the submission and unlocking vital support.
Beyond the estimate, ProfitPays generously contributed pro-bono time to assist with tendering the works, identifying suitable contractors, and guiding procurement strategy. This hands-on support streamlined delivery planning, reduced risk, and positioned 55 Central to activate urgently needed housing upgrades for vulnerable community members with confidence and speed.
ProfitPays structured estimate not only supported the initial SHERP grant application, it also gave 55 Central a scalable cost model. With quantities clearly defined and rates benchmarked to Rawlinson’s standards, the organisation can now update forecasts annually or as needed with minimal effort. Adjusting for inflation or market shifts simply involves refreshing the rate inputs, without reworking the entire measure. This flexibility ensures ongoing financial accuracy, supports future funding bids, and strengthens long-term asset planning.
Gallery
Floor Plans Drafted to Aid Measurement & Estimating Accuracy
Feedback
Client Words That Speak for Themselves
55 Central Inc
Mike prepared a BOQ & estimate for our not-for-profit organisation and was incredibly supportive throughout the process. He was great to work with – responsive, detailed and really accommodating. He made the whole process straightforward and easy and I’d happily recommend him.
55 Central Inc
Mike prepared a BOQ & estimate for our not-for-profit organisation and was incredibly supportive throughout the process. He was great to work with – responsive, detailed and really accommodating. He made the whole process straightforward and easy and I’d happily recommend him.
Did you like it? Share it!















